Việc thả chì hố thang máy là bước kiểm tra quan trọng sau khi hố thang đã hoàn thiện phần xây dựng. Công đoạn giúp đánh giá độ thẳng đứng, độ vuông góc và sai số kích thước thực tế của hố thang trước khi tiến hành lắp đặt ray dẫn hướng và cửa tầng. Đây là cơ sở để đảm bảo quá trình lắp đặt chính xác theo bản vẽ kỹ thuật, hạn chế sai sót và tăng độ an toàn.

Mục đích thả chì hố thang máy
Khi hố thang máy đã được xây dựng hoàn thiện, kỹ thuật viên tiến hành thả chì để kiểm tra:
- Độ thẳng đứng của hố thang
- Độ vuông góc giữa các mặt tường
- Độ lệch kích thước thực tế so với bản vẽ
- Kích thước chiều rộng và chiều sâu tại từng tầng
- Điều kiện lắp đặt ray dẫn hướng và cửa tầng
Việc thả dây chì giúp xác định chính xác kích thước thực tế của hố thang, từ đó đảm bảo hố thang đạt tiêu chuẩn lắp đặt theo bản vẽ kỹ thuật.

Quy trình thả chì kiểm tra hố thang máy
Sau khi hố thang hoàn thiện, tiến hành thả từ 2 đến 4 dây chì từ đỉnh hố thang xuống hố pit. Tại vị trí đỉnh hố thang cần khoan lỗ và lắp mắt liên kết để cố định dây chì. Quả chì được treo ở đầu dây để tạo độ căng và giữ dây luôn thẳng đứng. Sau khi dây chì ổn định, kỹ thuật viên tiến hành đo đạc và ghi nhận kết quả tại các vị trí trong hành trình hố thang. Theo bản vẽ lắp đặt:
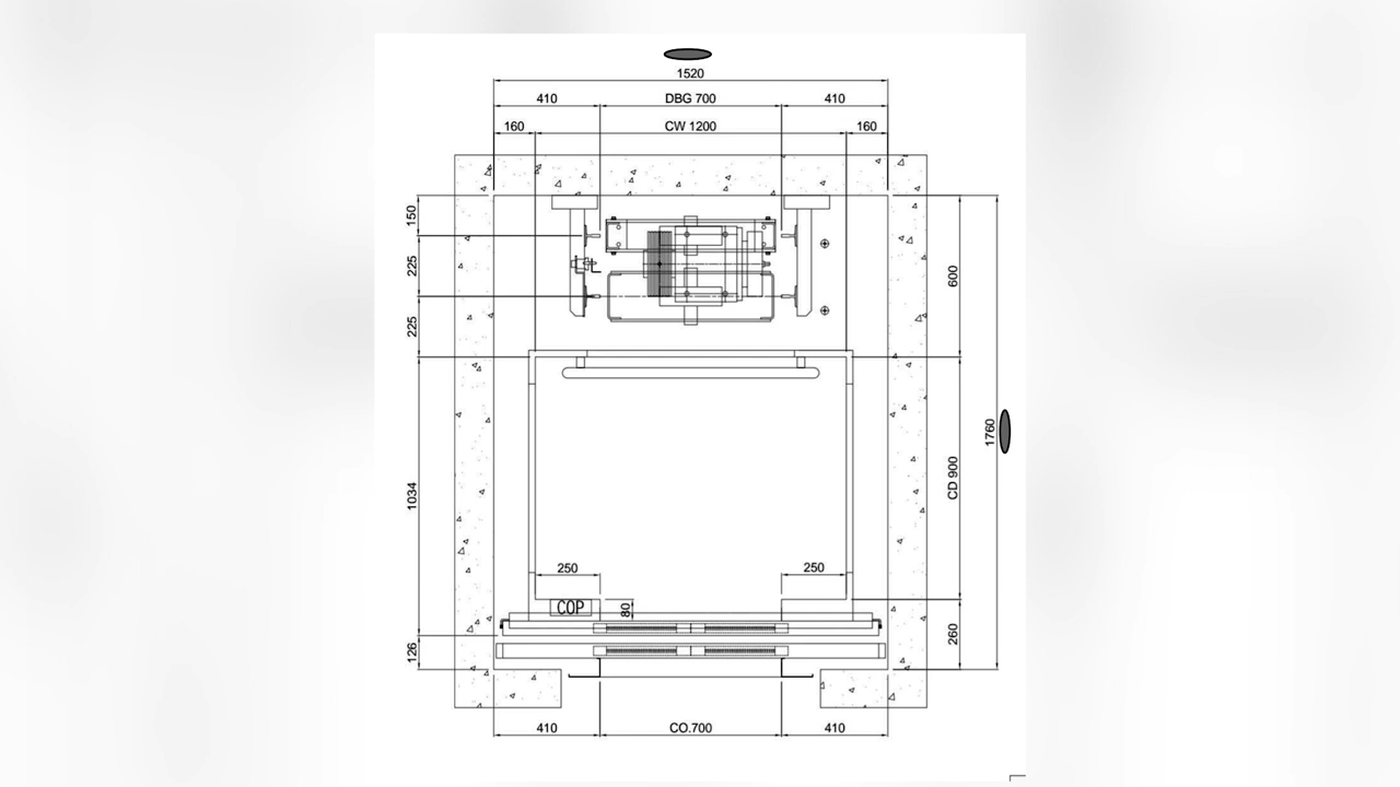
- Chiều rộng hố thang: 1.520 mm
- Chiều sâu hố thang: 1.760 mm
Sau khi đo thực tế, các kích thước nhỏ nhất ghi nhận được:
- A = 1.100 mm
- B = 735 mm
- C = 650 mm
- D = 790 mm
Đối chiếu với bản vẽ:
- A + C = 1.760 mm (bằng chiều sâu thiết kế)
- B + D = 1.525 mm (lớn hơn thiết kế 5 mm)
Như vậy, kích thước hố thang đạt tiêu chuẩn lắp đặt theo bản vẽ. Cần lưu ý rằng các vị trí nhỏ nhất đo được có thể nằm tại nhiều điểm khác nhau trong hành trình hố thang và không phải vị trí thả chì lắp đặt.

Vị trí thả chì
Vị trí thả chì được xác định tại đỉnh hố thang. Các kích thước tại vị trí hố thang có thể lớn hoặc nhỏ hơn kích thước nhỏ nhất đã đo được, tuy nhiên không tính vào kết quả kiểm tra vì khu vực không nằm trong hành trình hoạt động của cabin.

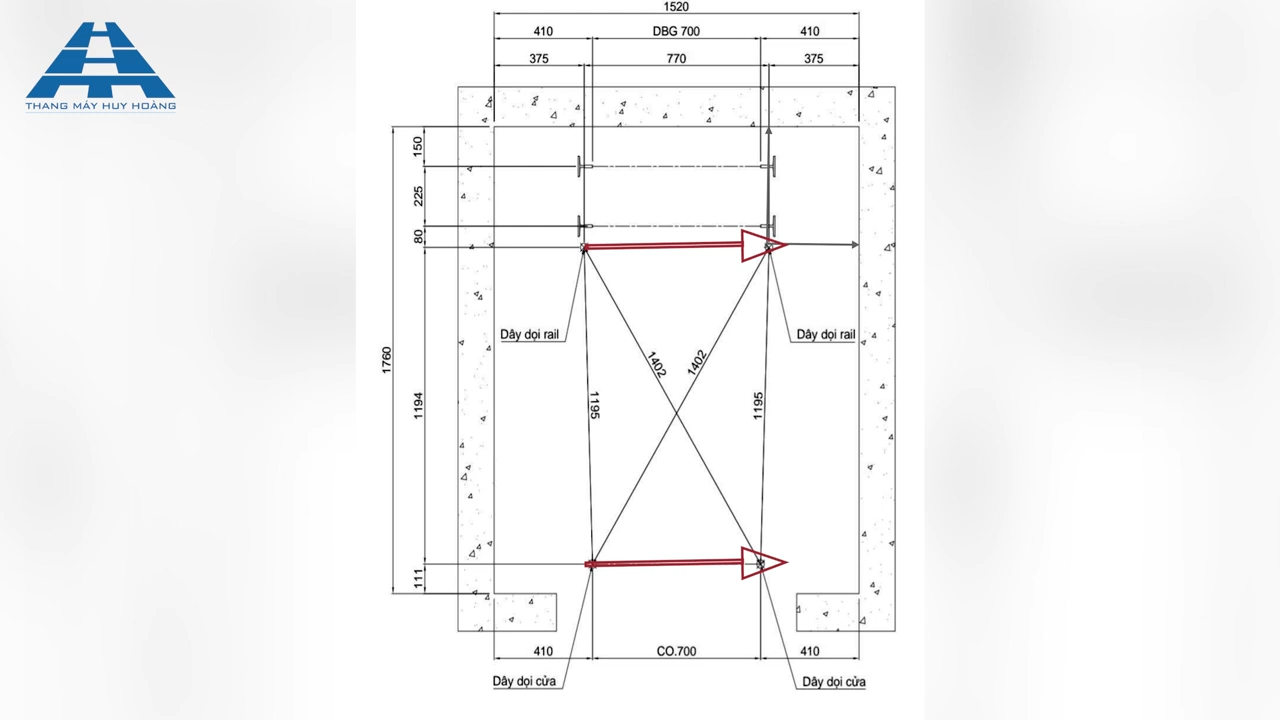
Cách xác định vị trí dây chì số 1 bên trái
Chiều sâu từ dây chì vào tường: A3 = 150 + 225 + 80 A3 = 445 mm Trong đó:
- 150 mm: khoảng cách từ tâm dây đối trọng đến tường
- 225 mm: khoảng cách từ tâm dây đối trọng đến tâm dây cabin
- 80 mm: khoảng cách từ tâm dây cabin đến tâm kim dây
Kim dây thang sử dụng có:
- Khoảng cách từ tâm kim đến tâm mũi kim: 80 mm
- Khoảng cách từ đỉnh kim đến mũi kim: 35 mm
Kích thước tiếp theo: D3 = 410 − 35 D3 = 375 mm Trong đó:
- 410 mm: khoảng cách từ tường vào đỉnh dây
- 35 mm: khoảng cách từ đỉnh dây đến mũi kim
Tiếp theo: B3 = 1.520 − 375 B3 = 1.145 mm

Cách xác định vị trí dây chì số 2 bên phải
Các kích thước như sau:
- A3 = 445 mm
- B3 = 410 − 35 = 375 mm
- C3 = 1.760 − 445 = 1.315 mm
- D3 = 1.520 − 375 = 1.145 mm

Xác định vị trí chì cửa số 1 bên trái
C3 = 126 − 15 C3 = 111 mm Trong đó:
- 126 mm: khoảng cách từ tường trước cửa đến vị trí sill cabin
- 15 mm: khoảng cách từ sill cabin đến tâm sill
Khoảng cách giữa sill cabin và sill cửa tầng là 30 mm nên từ mép đến tâm là 15 mm. Tiếp theo: D3 = 1.520 − 410 D3 = 1.110 mm

Xác định vị trí chì cửa số 2 bên phải
- A3 = 1.760 − 111 = 1.649 mm
- B3 = 410 mm
- D3 = 1.520 − 410 = 1.110 mm

Tính đường chéo kiểm tra độ vuông góc
Đường chéo được tính theo định lý Pythagore.
Đường chéo thứ nhất
- Cạnh chiều sâu: 1.194 mm
- Cạnh chiều rộng: 735 mm
Trong đó:
- 700 mm: chiều rộng cửa
- 35 mm: khoảng cách từ đỉnh dây đến kim
c = √(1194² + 735²) Đường chéo ≈ 1.402 mm
Đường chéo thứ hai
- Cạnh chiều sâu: 1.194 mm
- Cạnh chiều rộng: 35 mm
c = √(1194² + 35²) Đường chéo ≈ 1.195 mm

Điều chỉnh kích thước thả chì thực tế
Sau khi tính toán kích thước theo bản vẽ, kỹ thuật viên cần điều chỉnh theo độ chênh thực tế của hố thang:
- Nếu sai số dương → cộng vào kích thước tính toán
- Nếu sai số âm → trừ vào kích thước tính toán
Kích thước thả chì thực tế được ký hiệu:
- A4
- B4
- C4
- D4

Kiểm tra sau khi thả chì
Sau khi hoàn thành thả chì, cần kiểm tra lại:
- Khoảng cách từ dây chì đến tường
- Khoảng cách giữa các dây chì
- Kích thước theo bản vẽ lắp đặt
- Đường chéo kiểm tra độ vuông
Ưu tiên điều chỉnh theo kích thước thực tế của hố thang.

Xử lý sai lệch kích thước hố thang
Nếu kích thước hố thang sai lệch:
- Từ 0 – 10 mm → vẫn thả chì bình thường
- Lớn hơn 10 mm nhưng không ảnh hưởng thiết bị → vẫn thả chì theo bản vẽ
- Lớn hơn 10 mm và ảnh hưởng thiết bị lắp đặt → ưu tiên điều chỉnh vị trí dây để đảm bảo lắp được cửa và thiết bị
Nếu khoảng cách từ cửa đến tường trước quá lớn vượt giới hạn thiết bị, cần tính toán lại mặt bằng trước khi thi công.
Các bước thả chì lắp đặt dây và cửa
- Làm dàn chỉ theo kích thước bản vẽ lắp đặt
- Đảm bảo dàn chỉ lọt lòng hố thang
- Định vị các điểm dây và cửa theo chiều rộng, chiều sâu
- Kiểm tra đường chéo
- Hàn cố định khung chỉ dây và cửa
- Đưa dàn chỉ lên vị trí thả chì
- Căn chỉnh theo kích thước tính toán
- Thả dây chì xuống hố pit và cố định
- Kiểm tra lại chiều rộng, chiều sâu và đường chéo
Bảng thông số kỹ thuật thả chì kiểm tra hố thang máy
| Thuộc tính | Thông số |
|---|---|
| Tên dịch vụ | Thả chì kiểm tra hố thang máy |
| Thương hiệu | nhabephiendai.net |
| Hotline | 0966408078 |
| Chiều rộng thiết kế hố thang | 1.520 mm |
| Chiều sâu thiết kế hố thang | 1.760 mm |
| Số dây chì sử dụng | 2 – 4 dây |
| Hạng mục kiểm tra | Độ thẳng đứng, độ vuông góc, sai số kích thước |
| Vị trí thả chì | Đỉnh hố thang |
| Kích thước đo nhỏ nhất | A=1.100 mm, B=735 mm, C=650 mm, D=790 mm |
| Điều chỉnh sai số | Theo A4, B4, C4, D4 |
| Ứng dụng | Lắp đặt ray dẫn hướng và cửa tầng thang máy |




















